A ground-level retail opportunity in an upcoming office building. Fifth & Walsh’s upscale, yet welcoming, atmosphere perfectly reflects Austin’s energetic lifestyle, while capturing Clarksville’s unique local character.
- Breaking Ground: Q4 2025
- Delivering Q1 2028
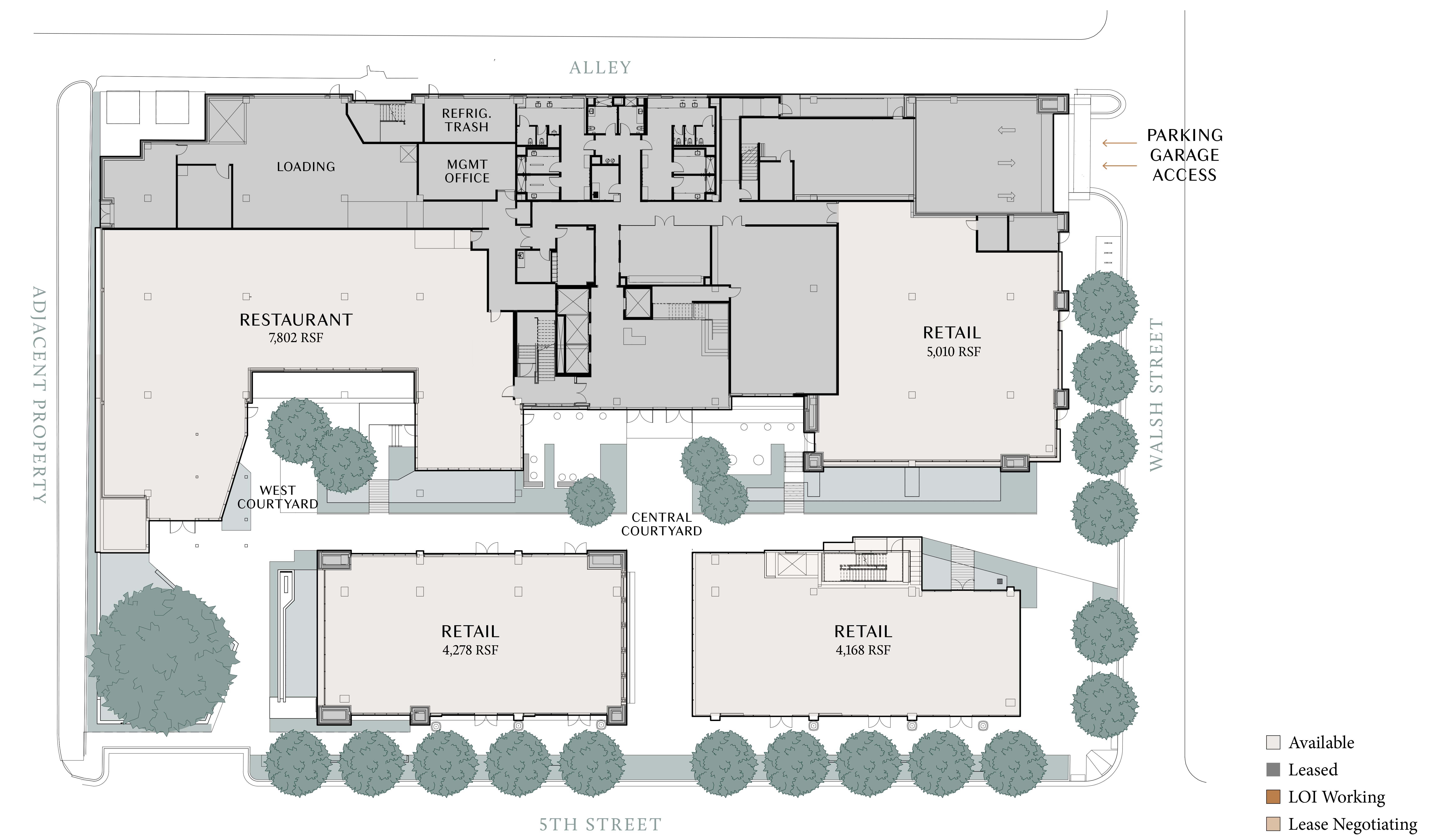
Availability
| Available Space | Size | Condition | Date Available | Media |
|---|---|---|---|---|
| - | 7,802 RSF | Restaurant | Q1 2028 | - |
| - | 4,278 RSF | Retail | Q1 2028 | - |
| - | 5,010 RSF | Retail | Q1 2028 | - |
| - | 4,168 RSF | Retail | Q1 2028 | - |
Property Details
FIND YOUR RHYTHM
At Fifth & Walsh, every hour is your finest hour —a place that is invigorating, relaxing, and everything in between. Here, the vibrancy of Clarksville meets a breezy atmosphere, providing a dynamic and welcoming environment where you can sit back and breathe easy.
AN EFFORTLESS RETAIL EXPERIENCE
- 1,200 – 4,278 SF of retail and restaurant space
- 8,400 SF+ available along 5th Street
DESIGNATED RETAIL PARKING
PROMINENT STREET PRESENCE
with 195′ of frontage along 5th Street.
EXCEPTIONAL BUILDING
unique to Clarksville, features retail/restaurant spaces and 4 levels of office
A BUILT-IN AUDIENCE
of 1,000+ office tenants
GROUND LEVEL PATIO
ideal for a quick lunch or lengthy chat over coffee
CENTRALIZED LOCATION
puts you minutes from everything Clarksville has to offer
THE LOCAL’S LOCAL
Historic Clarksville, just west of downtown, is now a contemporary entertainment district. Here, Stylish bungalows mingle with classic, upscale restaurants and one-of-a-kind retail to create an engaging and authentic vibe. Its buzzing streets are home to an invitingly exuberant atmosphere, singular to Austin.